The Legend City Đà Nẵng là tổ hợp căn hộ cao cấp sở hữu vị trí 4 mặt tiền đắc địa trên sông Hàn với 2 tòa tháp 25-29 tầng, cung cấp căn hộ 1-3 phòng ngủ đa dạng diện tích từ 40-115m².
The Legend City Đà Nẵng khẳng định vị thế biểu tượng sống mới tại trung tâm thành phố biển với thiết kế hiện đại và quy hoạch đồng bộ. Dự án có quy mô 11.200 m², bao gồm 2 tòa tháp cao tầng với 29 tầng nổi và 3 tầng hầm, tọa lạc tại vị trí đắc địa trên đường Võ Văn Kiệt, phường An Hải Tây, quận Sơn Trà. Với 4 mặt tiền đắt giá trên các trục đường huyết mạch: Võ Văn Kiệt, Ngô Quyền, Mai Hắc Đế và Lý Nam Đế, dự án mang đến cơ hội sở hữu căn hộ cao cấp tại vị trí kim cương hiếm có.
Xem thêm: Bảng giá The Legend City Đà Nẵng cập nhật tháng 8/2025
Mặt Bằng Tổng Thể Dự Án The Legend City Đà Nẵng

The Legend City được triển khai với tổng diện tích 7.167,5m² có mật độ xây dựng chỉ 45% đất thương phẩm và 55% diện tích cho hạ tầng giao thông nội khu cùng hệ thống cây xanh. Quy hoạch dự án tuân thủ nguyên tắc hài hòa với thiên nhiên, tối ưu hóa tầm nhìn panorama ra sông Hàn và tạo không gian sống thoáng đãng cho cư dân.
Cơ cấu sử dụng đất được phân bổ hợp lý với khu vực tòa tháp chính nằm ở vị trí trung tâm, khu vực tiện ích và cây xanh bao quanh, tạo nên môi trường sống trong lành. Vị trí “tứ diện kim cương” giáp các trục đường huyết mạch giúp cư dân chỉ mất vài phút để di chuyển đến bãi biển Mỹ Khê tuyệt đẹp hay khu phố đêm Sơn Trà sôi động.

Phân Tích Chi Tiết Thiết Kế Từng Loại Căn Hộ
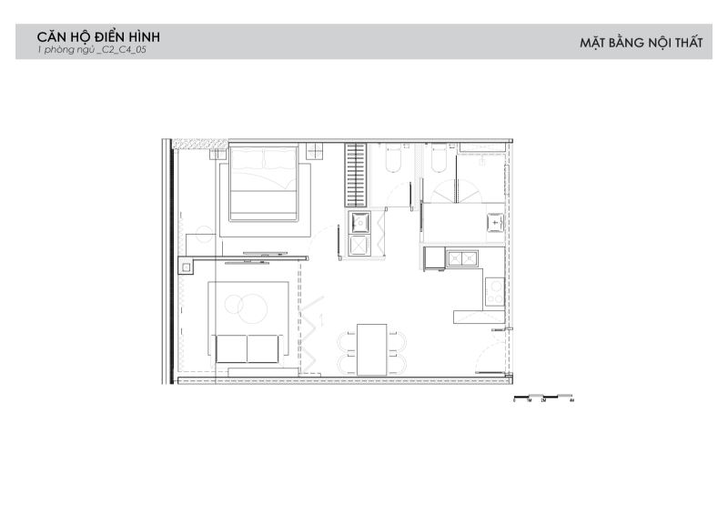
Căn Hộ 1 Phòng Ngủ



Căn hộ Legend 1 phòng ngủ có diện tích dao động từ 40-55m², được thiết kế thông minh để tối đa hóa công năng sử dụng. Mặt bằng căn hộ 1PN bao gồm không gian sinh hoạt chung rộng rãi, phòng ngủ có cửa sổ lớn đón ánh sáng tự nhiên và khu vực bếp hiện đại.
| Thông Số Kỹ Thuật | Mô Tả |
| Diện tích sử dụng | 40 – 55m² |
| Số phòng ngủ | 1 phòng |
| Số toilet | 1 WC |
| Ban công | 1 ban công rộng |
| Tầm nhìn | Sông Hàn, nội khu |
Thiết kế căn hộ 1PN ưu tiên sự thoáng mát với hệ thống cửa sổ lớn, ban công rộng mở ra tầm nhìn sông Hàn thơ mộng. Khu vực bếp được thiết kế mở, kết nối hài hòa với phòng khách, tạo cảm giác rộng rãi cho không gian sống.
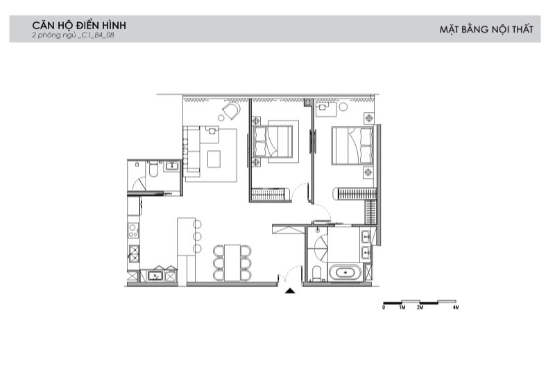
Căn Hộ 2 Phòng Ngủ



Căn hộ Legend 2 phòng ngủ có diện tích dao động từ 68-84m², đáp ứng nhu cầu của gia đình nhỏ với không gian sinh hoạt đầy đủ. Mặt bằng được bố trí khoa học với 2 phòng ngủ riêng biệt, phòng khách và bếp liên thông.
| Thông Số Kỹ Thuật | Mô Tả |
| Diện tích sử dụng | 68 – 84m² |
| Số phòng ngủ | 2 phòng |
| Số toilet | 2 WC |
| Ban công | 1-2 ban công |
| Tầm nhìn | Sông Hàn, thành phố |
Phòng ngủ chính được thiết kế với toilet riêng và tầm nhìn đẹp, trong khi phòng ngủ thứ hai linh hoạt sử dụng làm phòng làm việc hoặc phòng trẻ em. Không gian bếp và phòng ăn được tách biệt rõ ràng, đảm bảo sự riêng tư và tiện nghi.
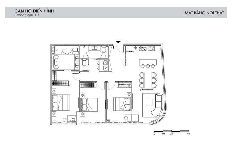
Căn Hộ 3 Phòng Ngủ



Căn hộ Legend 3 phòng ngủ có diện tích dao động từ 100-115m²/căn, là dòng sản phẩm cao cấp nhất với không gian sống rộng rãi và tiện nghi đầy đủ. Thiết kế căn hộ 3PN chú trọng sự riêng tư và thoải mái cho từng thành viên.
| Thông Số Kỹ Thuật | Mô Tả |
| Diện tích sử dụng | 100 – 115m² |
| Số phòng ngủ | 3 phòng |
| Số toilet | 2-3 WC |
| Ban công | 2 ban công |
| Tầm nhìn | Panorama sông Hàn |
Căn hộ 3PN sở hữu phòng khách rộng với tầm nhìn panorama, phòng bếp riêng biệt và khu vực sinh hoạt chung thoáng đãng. Ba phòng ngủ được bố trí hợp lý, phòng chính có toilet riêng và tầm nhìn đẹp nhất.

Tiêu Chuẩn Bàn Giao và Vật Liệu Cao Cấp
Dự án được đầu tư bởi Công ty ROX Signature với tiềm lực tài chính vững mạnh, đảm bảo cho việc triển khai dự án một cách suôn sẻ và đúng tiến độ. (Cần xác nhận với chủ đầu tư về tiêu chuẩn bàn giao cụ thể)
| Hạng Mục | Tiêu Chuẩn Bàn Giao |
| Sàn | Sàn gỗ cao cấp phòng ngủ (cần xác nhận) |
| Tường | Sơn nước cao cấp (cần xác nhận) |
| Cửa | Cửa gỗ công nghiệp (cần xác nhận) |
| Thiết bị vệ sinh | Bộ thiết bị cao cấp (cần xác nhận) |
| Điện nước | Hệ thống điện âm tường (cần xác nhận) |
So Sánh Với Dự Án Khác
Capital Square Đà Nẵng
| Tiêu Chí | Thông Tin |
| Vị trí | Phường An Hải Bắc, quận Sơn Trà |
| Chủ đầu tư | BRG Group |
| Quy mô | 61.368m², 14 tòa tháp 24-29 tầng |
| Pháp lý/Bàn giao | Khởi công 3/2025 (cần xác nhận tiến độ) |
| Tiện ích nổi bật | Hồ bơi vô cực, Sky Bar, Gym cao cấp |
| Khoảng giá tham khảo | 4-6 tỷ/căn (cần xác nhận) |
| Tiến độ | Đang thi công móng |
| Điểm khác biệt chính | Quy mô lớn nhất với 14 tòa tháp |
Masteri Rivera Đà Nẵng
| Tiêu Chí | Thông Tin |
| Vị trí | 50 Quy Mỹ, quận Hải Châu |
| Chủ đầu tư | Masterise Homes |
| Quy mô | 18.296m², 2 tòa 39 tầng |
| Pháp lý/Bàn giao | Khởi công 12/2023, tiến độ tầng 14 |
| Tiện ích nổi bật | 31 tiện ích compound, hồ bơi resort |
| Khoảng giá tham khảo | 4.13-4.51 tỷ/căn 1PN |
| Tiến độ | Đang thi công kết cấu |
| Điểm khác biệt chính | Thương hiệu Masterise uy tín |
Kết luận so sánh:
- The Legend City sở hữu lợi thế vị trí 4 mặt tiền độc nhất, trong khi Capital Square có quy mô lớn nhất và Masteri Rivera dẫn đầu về tiến độ thi công
- Về vị trí, The Legend City và Capital Square đều tại quận Sơn Trà gần sông Hàn, Masteri Rivera tại quận Hải Châu
- The Legend City có mật độ xây dựng thấp hơn (45%), tạo không gian xanh nhiều hơn so với các dự án khác
- Cả 3 dự án đều được phát triển bởi chủ đầu tư uy tín với kinh nghiệm triển khai dự án lớn
- Giá bán cần được xác nhận trực tiếp với từng chủ đầu tư để có thông tin chính xác nhất.
Xem thêm: Vị trí The Legend City Đà Nẵng: Phân tích liên kết vùng và tiềm năng đầu tư 2025
FAQ
The Legend City có những loại căn hộ nào?
Dự án cung cấp căn hộ 1-3 phòng ngủ với diện tích từ 40-115m², đáp ứng nhu cầu đa dạng từ người độc thân đến gia đình đông thành viên.
Vị trí The Legend City có thuận tiện di chuyển không?
Dự án sở hữu 4 mặt tiền trên các trục đường huyết mạch, cách sân bay 10 phút, biển Mỹ Khê 5 phút và cầu Rồng chỉ 5 phút di chuyển
Tiến độ xây dựng The Legend City như thế nào?
Dự án đã khởi công ngày 28/2/2025 và dự kiến hoàn thành vào quý IV/2027-2028 (cần xác nhận với chủ đầu tư)
The Legend City có những tiện ích gì?
Dự án quy hoạch với 55% diện tích dành cho cây xanh và tiện ích, bao gồm hồ bơi vô cực, gym, spa và khu vui chơi trẻ em (cần xác nhận chi tiết với chủ đầu tư).
Pháp lý The Legend City có đảm bảo không?
Dự án đã có giấy phép xây dựng số 07/GPXD từ Sở Xây dựng TP. Đà Nẵng, tuy nhiên khách hàng nên xác minh trực tiếp với chủ đầu tư về tình trạng pháp lý mới nhất.
Giá bán căn hộ The Legend City bao nhiều?
Thông tin giá bán cần được xác nhận trực tiếp với chủ đầu tư để đảm bảo tính chính xác và cập nhật.
Thông tin tác giả

Chuyên Gia Tư Vấn BĐS với hơn 10 năm hoạt động tại thị trường Đà Nẵng, có kinh nghiệm dày dặn, kiến thức chuyên môn cao trong các phân khúc: Căn hộ cao cấp, khách sạn, nhà phố, biệt thự, đất nền khu vực trung tâm, đắc địa,...





